Centro
Corso Roma
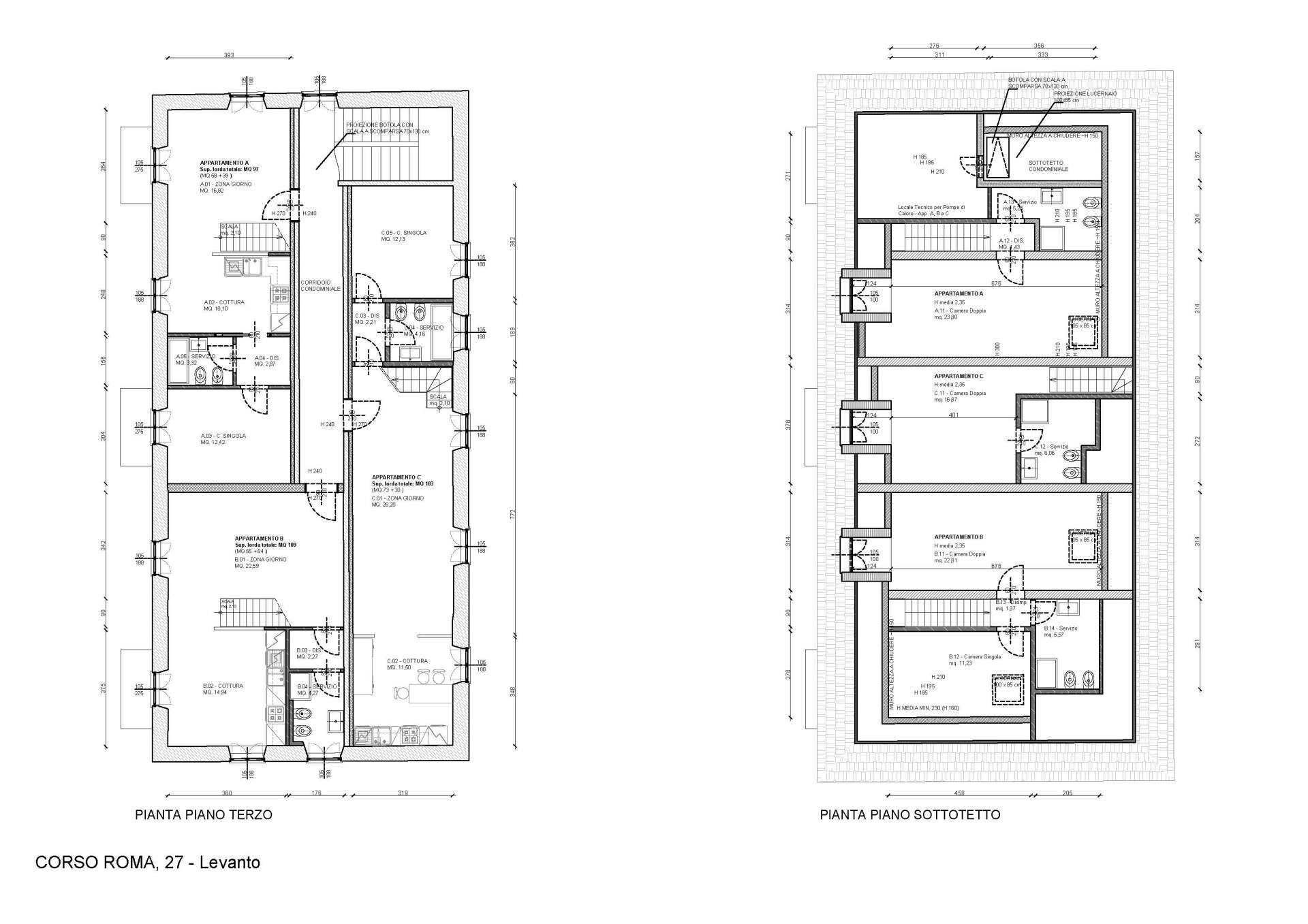
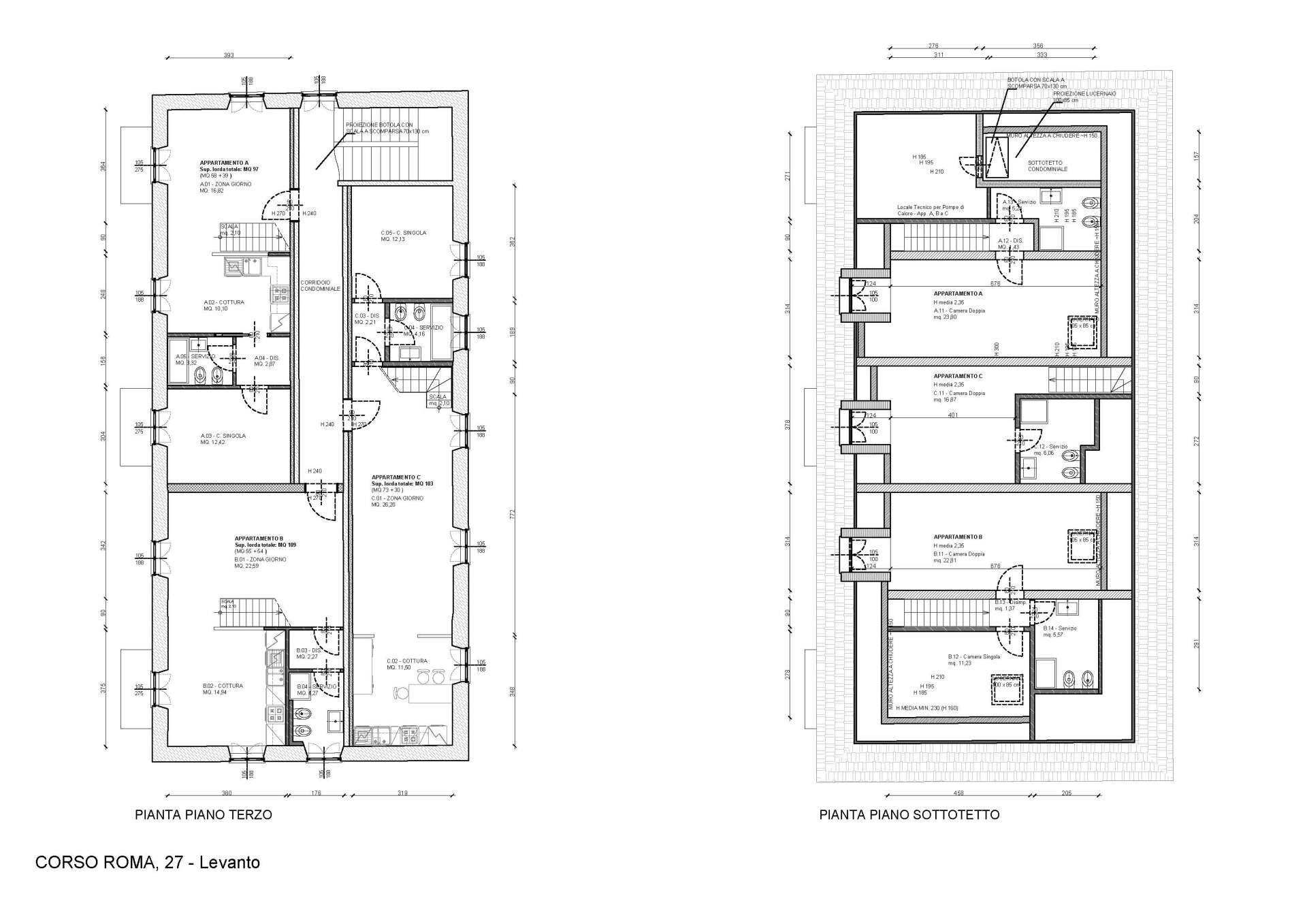
Appartamento "B"Nuovo! Trilocale 109 mq. con Balconata
Dona vita alle tue idee!
Centro - Nuovo! - Trilocale 109 mq. - con Balconata
| Mq. | Locali | Balconi | Prezzo | €/mq. |
|---|---|---|---|---|
| 109 | 3 | 1 | 500.000 | 4.587 |
In Corso Roma e a due passi dal mare, proponiamo in Vendita appartamento Trilocale appena realizzato, di 109 mq. dotato di balconata.
L'abitazione, di nuova costruzione, risulta situata in signorile edificio d’epoca completamente ristrutturato nelle parti comuni compreso il tetto e si presenta con ottime finiture e con impianti di ultima generazione.
L'appartamento è disposto su due livelli collegati direttamente da comoda scala interna.
E' composto da ampio soggiorno d’ingresso, cucina abitabile, due grandi camere da letto, comodi doppi servizi con doccia, oltre balconata esposta a mezzogiorno.
Ulteriore possibilità di porzione di giardino sottostante e di posto auto coperto sito nelle immediate vicinanze.
L'acquisto dell'appartamento beneficia della DETRAZIONE FISCALE
per ristrutturazione edilizia.
Unica opportunità anche come investimento per reddito da locazione. Possiamo gestire l'immobile affittandolo per brevi periodi con la possibilità per il proprietario di usufruirne nei periodi di interesse.
PUO' INTERESSARTI QUESTO IMMOBILE? Fai la tua proposta ragionevole!
Contattateci senza impegno per una visita, saremo lieti di accompagnarvi venendo incontro alle vostre esigenze. Siamo aperti dal lunedì al sabato dalle 9 alle 19 orario continuato.
Se cerchi Casa, se vuoi Vendere o se vuoi Affittare, PRIMA rivolgiti a NOI!
| CARATTERISTICHE | |||
|---|---|---|---|
| TIPOLOGIA | Appartamento | SUPERFICIE | 109 mq. |
| LOCALI | 3 | VANI | 6 |
| BAGNI | 2 | PIANO | Terzo-Quarto |
| BALCONE | Sì | ARREDATO | No |
| RISCALDAMENTO | Autonomo | CLASSE ENERG. | B |
Quanto pagheresti per questo immobile?
La nostra garanzia

Qualità
Tutto il nostro lavoro mira a fornire servizi di altissima qualità. Vendiamo solo prodotti che soddisfano un elevato standard di qualità, garantita attraverso controlli qualità a cadenza regolare.
Scopri di più

Efficienza
Il tempo è denaro – anche per i nostri clienti. Lavoriamo pertanto in modo ottimale e con un team ben organizzato. In questo modo possiamo garantire di prestarti il servizio migliore al tempo prestabilito e di evitare tempi di attesa.
Scopri di più

Prezzi giusti
La trasparenza dei prezzi è la colonna portante di una collaborazione basata sulla fiducia. Perciò definiamo i nostri prezzi in modo chiaro e giusto. È importante che anche i nostri fornitori ricevano il guadagno appropriato per il lavoro svolto!
Scopri di più
Rimani connesso
Leggi i nostri ultimi aggiornamenti
Non perderti neanche un messaggio
Dai un'occhiata alle nostre foto
Rivolgiti a noi
Vieni a trovarci a Levanto per ricevere maggiorni informazioni sulle nostre offerte.






